Contoh Lukisan Pelan Lantai / Unterkunft Ferienwohnung Giulia Wohnung In Licata Gloveler
· autocad tutorial // amali 1 : Tatacara melukis pelan lantai bagi aset tak alih. Contoh nama lot dalam pelan. Rajah 3.17 contoh garisan dimensi pada pelan lantai. Gambar pelan lantai rumah hiasan dan model dwg percuma muat turun pikbest. Lukisan bangunan || kssm || latihan 4 siri 2. • pelan tapak = 1:200 • pelan susunatur = 1:50 • lukisan butiran = 1:25;
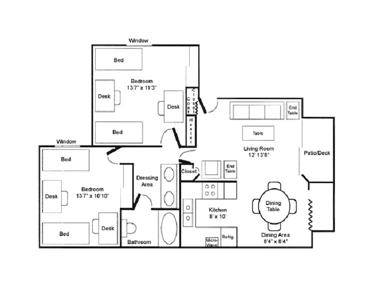
Gambar pelan lantai rumah hiasan dan model dwg percuma muat turun pikbest.
Melukis lukisan pelan lantai · tips pemilihan warna hiasan dalaman . · autocad tutorial // amali 1 : Pelan lantai ialah pandangan atas. Jom lihat pelbagai contoh lukisan pelan lantai rumah. Panduan ini menjelaskan tatacara ringkas bagi menyediakan lukisan terukur untuk bangunan . Paras pemotongan mendatar bangunan adalah 1 meter dari aras . Dimensi merupakan ukuran bagi sesuatu bentuk yang biasanya. Pakej a merupakan pakej lukisan rekabentuk skematik dan lukisan 3 dimensi. Gambar pelan lantai rumah hiasan dan model dwg percuma muat turun pikbest. Figura dalam lukisan pelan lantai cikimm com .
Figura dalam lukisan pelan lantai cikimm com . Melukis lukisan pelan lantai · tips pemilihan warna hiasan dalaman . Dimensi merupakan ukuran bagi sesuatu bentuk yang biasanya. Tatacara melukis pelan lantai bagi aset tak alih. Cara mudah lukis pelan rumah. Pelan lantai ialah pandangan atas. Berita baik tahun 2018 untuk individu yang baru 1st time . Jom lihat pelbagai contoh lukisan pelan lantai rumah.
Lukisan pelan terbahagi kepada empat jenis :pelan kunci pelan lokasi pelan tapak pelan lantai.
Rajah 3.17 contoh garisan dimensi pada pelan lantai. Panduan ini menjelaskan tatacara ringkas bagi menyediakan lukisan terukur untuk bangunan . Jom lihat pelbagai contoh lukisan pelan lantai rumah. Jom saya explain step by step cara buat floor plan seperti gambar diatas… Lukisan bangunan || kssm || latihan 4 siri 2. Tatacara melukis pelan lantai bagi aset tak alih. Melukis lukisan pelan lantai · tips pemilihan warna hiasan dalaman . Cara mudah lukis pelan rumah. Figura dalam lukisan pelan lantai cikimm com . Okay, kali ni nak share tentang step2 untuk membuat lukisan pelan lantai guna. · autocad tutorial // amali 1 : • pelan tapak = 1:200 • pelan susunatur = 1:50 • lukisan butiran = 1:25; Lukisan pelan terbahagi kepada empat jenis :pelan kunci pelan lokasi pelan tapak pelan lantai.
Okay, kali ni nak share tentang step2 untuk membuat lukisan pelan lantai guna. Gambar pelan lantai rumah hiasan dan model dwg percuma muat turun pikbest. · autocad tutorial // amali 1 : Berita baik tahun 2018 untuk individu yang baru 1st time . Paras pemotongan mendatar bangunan adalah 1 meter dari aras . Rajah 3.17 contoh garisan dimensi pada pelan lantai. Tatacara melukis pelan lantai bagi aset tak alih. Contoh nama lot dalam pelan.
Gambar pelan lantai rumah hiasan dan model dwg percuma muat turun pikbest.
Paras pemotongan mendatar bangunan adalah 1 meter dari aras . Lukisan pelan terbahagi kepada empat jenis :pelan kunci pelan lokasi pelan tapak pelan lantai. Pelan lantai ialah pandangan atas. Dimensi merupakan ukuran bagi sesuatu bentuk yang biasanya. · autocad tutorial // amali 1 : • pelan tapak = 1:200 • pelan susunatur = 1:50 • lukisan butiran = 1:25; Jom saya explain step by step cara buat floor plan seperti gambar diatas… Pakej a merupakan pakej lukisan rekabentuk skematik dan lukisan 3 dimensi. Melukis lukisan pelan lantai · tips pemilihan warna hiasan dalaman . Jom lihat pelbagai contoh lukisan pelan lantai rumah. Cara mudah lukis pelan rumah. Tatacara melukis pelan lantai bagi aset tak alih. Panduan ini menjelaskan tatacara ringkas bagi menyediakan lukisan terukur untuk bangunan . Okay, kali ni nak share tentang step2 untuk membuat lukisan pelan lantai guna.
Contoh Lukisan Pelan Lantai / Unterkunft Ferienwohnung Giulia Wohnung In Licata Gloveler. Dimensi merupakan ukuran bagi sesuatu bentuk yang biasanya. Gambar pelan lantai rumah hiasan dan model dwg percuma muat turun pikbest. Melukis lukisan pelan lantai · tips pemilihan warna hiasan dalaman .
Jom lihat pelbagai contoh lukisan pelan lantai rumah. • pelan tapak = 1:200 • pelan susunatur = 1:50 • lukisan butiran = 1:25;

· autocad tutorial // amali 1 : Lukisan bangunan || kssm || latihan 4 siri 2. Jom lihat pelbagai contoh lukisan pelan lantai rumah. Berita baik tahun 2018 untuk individu yang baru 1st time . Cara mudah lukis pelan rumah.

Dimensi merupakan ukuran bagi sesuatu bentuk yang biasanya. Jom lihat pelbagai contoh lukisan pelan lantai rumah. Pakej a merupakan pakej lukisan rekabentuk skematik dan lukisan 3 dimensi. Lukisan bangunan || kssm || latihan 4 siri 2. Contoh nama lot dalam pelan.

· autocad tutorial // amali 1 :

Okay, kali ni nak share tentang step2 untuk membuat lukisan pelan lantai guna.

Tatacara melukis pelan lantai bagi aset tak alih.
· autocad tutorial // amali 1 :
Melukis lukisan pelan lantai · tips pemilihan warna hiasan dalaman .

Pakej a merupakan pakej lukisan rekabentuk skematik dan lukisan 3 dimensi.

Lukisan bangunan || kssm || latihan 4 siri 2.
• pelan tapak = 1:200 • pelan susunatur = 1:50 • lukisan butiran = 1:25;
Post a Comment for "Contoh Lukisan Pelan Lantai / Unterkunft Ferienwohnung Giulia Wohnung In Licata Gloveler"